取り込んだPDFファイルをクロップする
|
コマンド |
パス |
|
クロップの設定 |
加工 コンテキストメニュー |
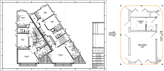
取り込んだPDFページおよび参照PDFページをクロップして、PDFページの一部分だけが表示されるようにすることができます。
取り込んだPDFまたは参照PDFをクロップするには:
PDFページオブジェクトを選択します。
コマンドを選択するか、またはPDFページオブジェクトをダブルクリックします。
図形の編集モードが開きます。PDFオブジェクトが3D平面上にある場合は、スクリーンプレーンと3D平面が平行になるようにビューが回転します。
領域を定義する四角形、円、曲線などの2D図形を作成します。2D図形を配置して、新しいPDFの表示領域を決定します。PDFをクロップする図形の面属性は、必ずなしになります。ただし、線種は枠の編集モードにいる間に属性パレットで設定できます。
PDFページの枠の編集を出るをクリックして図面に戻ります。
クロップされたPDFが表示され、オブジェクト情報パレットのクロップの状態がありに変わります。
クロップした図形を変更、置き換え、または削除するには、PDFページオブジェクトを選択してから再びコマンドを選択し、再び枠の編集モードに入ります。
枠図形の表示設定を変更するには、オブジェクト情報パレットの枠を表示設定を変更します。
